Active Systems Overview

Our Active Systems team are all highly knowledgeable and eminently qualified to undertake any design projects or tackle any system issues you may have, in order to increase the likelihood of preserving life and minimising damage to property.

System designs

From project concepts to detailed design, our in-depth understanding of the mechanics of fire spread and of building construction enables us to advise and support intelligent decision making at the earliest stages.

IFC’s design capabilities can be utilised at any RIBA Stage covering conceptual engineering, detail engineering designs, product selection and use, construction monitoring and final acceptance testing; we are also used to delivering to tight deadlines.

Our aim is to integrate tailored fire engineering solutions and Fire Safety Management techniques to create a safer building environment for the occupants, without compromising the architectural integrity of your building designs.

Even for outwardly small projects, the design stage can be a complex and in-depth process of assimilating client preferences with the latest standards and applicable codes and then translating that into detailed drawings and final design recommendations.

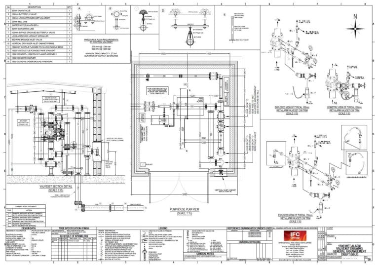
The IFC Group, design Active Fire Systems in accordance with all current standards including BS 9251 and BS EN 12845.

Our extensive CAD and design capabilities allow us to integrate differing systems such as alarms and sprinklers with any existing building components to create comprehensive and robust solutions; which you will find are compatible with those used by architects and engineers worldwide.

System Inspections

You may own or manage new or historic buildings and may have already invested in a fire protection system, so are reasonably reassured knowing the lives of the occupants and your properties are safeguarded. But how often are these systems inspected?

Inspections are an important part of the successful prevention and protection of buildings and their users from the devastating effects of fire.

Ill-fitted or deteriorated products and systems, as well as changes to structural materials and internal layouts of buildings can compromise the effectiveness of fire protection in a building if they are not properly assessed, and any remedial recommendations implemented and maintained.

IFC’s Fire Safety Engineers are regularly called upon to inspect and review, Active Fire Protection Systems in-situ for any building type.

Capability

The purpose of any designed system is to help detect, suppress and potentially extinguish an outbreak of fire.

Characteristic

It is characterised as requiring motion or response in order for it to be triggered (contrary to passive fire protection). 

Requirement

The inspection of AFPE forms part of a suitable and sufficient fire risk assessment under the Regulatory Reform (Fire Safety) Order 2005.

Get in Touch
close slider
Please use this form to get in touch with us. If your enquiry is urgent please call +44 (0)1844 275500 and ask for someone in our team.
The information you provide will be stored and used by IFC Group for internal analysis purposes only and will not be passed onto any third parties. The information you provide is strictly for the purposes of helping IFC Group to assess and improve its services.
  • Drop files here or
    Max. file size: 32 MB.
      Please upload any documents you think will help us to provide an accurate quote. These can include drawings, scope or programmes.
    • This field is for validation purposes and should be left unchanged.
    Scroll to Top